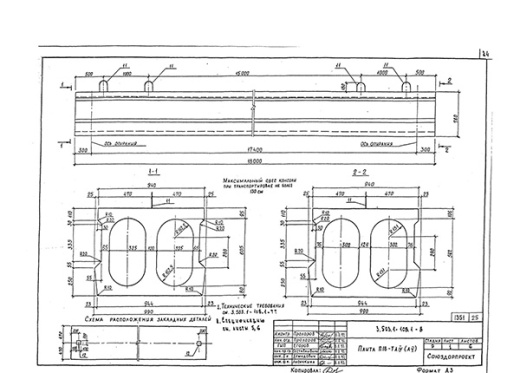
Типовые железобетонные изделия для пролетных строений, в том числе и Плита П18-ТАIV-1, применяются в строении мостов, путепроводов и эстакад на автомобильных дорогах категорий ІІ, ІІІ и IV. Они успешно функционируют в широком температурном диапазоне (от +40 до -40 градусов) и противопоказаны для установки лишь в северной строительно-климатической зоне. Подобные изделия выдерживают сейсмическую активность вплоть до 6 баллов по шкале Рихтера. При проектировании следует иметь в виду, что плиты рассчитаны на установку на прямолинейных дорожных участках при стандартном сопряжении пролетов: для искривленных мест и при косом сопряжении следует вносить в проект изделий некоторые конструкционные коррективы
Марка железобетонного изделия присваивается ему еще на стадии разработки. Она состоит из нескольких групп буквенно-цифровых обозначений, и несет в себе информацию о типе конструкции и ее отличительных особенностях.
П – плита
Цифра – длина плиты в метрах
Т – тяжелый бетон
АV – арматура напрягаемая
Цифра – тип арматуры
Высокопрочные материалы для мостов выпускаются в виде пустотных плит длиной 12, 15 или 18 метров. Плиты предназначены для работы на автомобильных дорогах и рассчитаны на колесную нагрузку НК-80. Плиты имеют армирование сетками, стержнями и рамами, а также обладают высокой водонепроницаемостью (не менее W6).
Тяжелые марки бетона имеют класс на сжатие не ниже В35, а плиты предварительно проходят испытания на прочность и трещиностойкость. Арматурные каркасы и сетки выполнены из стали классов A-I, A-II, A-III, A-IV или Aт-V и предварительно антикоррозийно обрабатываются.
В компании БЛОК можно заказать Плита П18-ТАIV-1 железобетонные, а так же проконсультироваться с нашими специалистами, подобрать требуемые конструкции железобетонных изделий. В нашем отделе продаж можно узнать заранее уточнить цену железобетонных Плита П18-ТАIV-1 и рассчитать общую стоимость заказа. Купить Плита П18-ТАIV-1 железобетонные и проконсультироваться по общим вопросам покупки и доставки Вы можете позвонив по телефонам компании БЛОК
Компания ООО “БЛОК” осуществляет Плита П18-ТАIV-1 по всей России прямо до объекта заказчика или на строительную площадку, если позволяет инфраструктура.
|
ГОСТ/Серия
|
Серия 3.503.1-108 |
|
Длина, мм
|
18000 |
|
Ширина, мм
|
990 |
|
Высота, мм
|
780 |
|
Масса, тонн
|
17,5 |
|
Объем бетона, куб.м
|
7 |
|
Класс бетона
|
В35 |
|
Геометрический объем, м.куб
|
1049,7 |
Как купить
Процесс покупки железобетонных изделий у нас прост и удобен. Следуйте этим шагам:
- Выбор продукции: Ознакомьтесь с нашим ассортиментом и выберите необходимые железобетонные изделия.
- Консультация: Свяжитесь с нашим менеджером для получения консультации по выбору продукции и уточнения всех деталей. Вы можете позвонить нам или написать на электронную почту.
- Оформление заказа: После согласования всех деталей оформите заказ. Менеджер поможет вам заполнить все необходимые документы.
- Согласование доставки: После оформления заказа наш менеджер свяжется с вами для согласования условий и сроков доставки.
- Оплата: Выберите удобный способ оплаты. Мы предлагаем несколько вариантов, включая безналичный расчет.
- Получение товара: После выполнения всех условий заказа, вы получите железобетонные изделия в назначенное время и по согласованному адресу. При получении подпишите акт приема-передачи.
Если у вас возникли вопросы на любом этапе покупки, не стесняйтесь обращаться к нашим менеджерам!
Оплата
Мы принимаем только безналичные платежи и работаем исключительно с юридическими лицами. Пожалуйста, ознакомьтесь с условиями оплаты ниже:
- Способ оплаты: Все расчеты производятся безналичным путем. Мы не принимаем наличные.
- Счет на оплату: После оформления заказа вам будет выставлен счет, который необходимо оплатить в срок, указанный в документе.
- Реквизиты: Все необходимые банковские реквизиты будут предоставлены в счете. Убедитесь, что все данные указаны правильно для успешного перевода.
- Подтверждение оплаты: После осуществления платежа отправьте нам подтверждение, чтобы мы могли оперативно обработать ваш заказ.
- Получение документов: После полной оплаты вы получите все необходимые документы, включая акт выполненных работ, товарные накладные и сертификаты на продукцию.
Мы работаем с НДС и предоставляем все необходимые сертификаты и документы. Все гарантии будут прописаны в договоре, что обеспечивает прозрачность и надежность сотрудничества.
Если у вас есть вопросы по поводу процесса оплаты, не стесняйтесь обращаться к нашим менеджерам за помощью!
Наша оперативность — ваше удобство. Мы гарантируем своевременную доставку железобетонных изделий, что является ключевым фактором для успешной реализации ваших строительных проектов. Доставка осуществляется прямо к вашему объекту с учетом всех стандартов качества.
Основные условия доставки:
• Выбор тарифа: Вы можете выбрать способ расчета стоимости доставки — почасовой или по зонам.
• Согласование: Менеджер свяжется с вами для уточнения деталей после оформления заказа.
• Время на погрузку: Комплектация товара занимает от 1 до 3 дней в зависимости от объема.
• Акт приема-передачи: Продукция передается по акту приема-передачи.
Тарифы на доставку:
Цены варьируются в зависимости от расстояния и региона. Все тарифы включают НДС. При неблагоприятных погодных условиях возможны небольшие изменения в стоимости.
География доставки:
Мы работаем по всей территории РФ и имеем 12 офисов и производств, чтобы обеспечить удобные условия для доставки.
Для точного расчета стоимости доставки обращайтесь к нашим менеджерам!

